Flexit EcoNordic
Flexit EcoNordic WH4-sisäilmalämpöpumpulla voidaan tuottaa tilojen lämmitys, lämmin käyttövesi sekä ilmanvaihto. Laite on erinomainen valinta energiatehokkaisiin matalanenergia rakennuksiin.
Tuote on hankittavissa kahtena versiona. Ensimmäisessä mallissa on integroitu ilmanvaihto ja lämpimän veden tuotto. Malli soveltuu erityisesti asuntoihin, joissa on itsenäinen olemassa oleva lämmitysratkaisu. Se sopii myös jälkiasennuskäyttöön, vaihdettavaksi vanhan ilmanvaihtolaitteiston ja lämminvesivaraajan tilalle. Rakennuksiin ja asuntoihin, joissa ei ole käytössä keskitettyä ilmanvaihtoa ja lämpimän veden tuottoa, tuote sopii, mikäli sen asennukseen on käytettävissä vapaa tila.
Toinen malli on varustettu integroidulla lämmitysilmatoiminnolla varsinaisen ilmanvaihdon ja lämpimän veden tuoton lisäksi. Järjestelmä sopii hyvin uusiin asuntoihin, ja se pystyy optimoidusti kattamaan asunnon koko pinta-alan ilmanvaihto-, lämmitys- ja lämminvesitarpeet.
Dokumentit
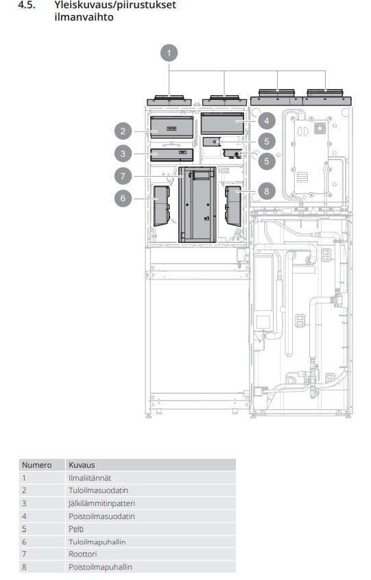
Tekniset kuvat
Asennusopas
Käyttöopas
Esitteet
Tuotetiedot
Flexit EcoNordic WH4-sisäilmalämpöpumpulla voidaan tuottaa tilojen lämmitys, lämmin käyttövesi sekä ilmanvaihto. Laite on erinomainen valinta energiatehokkaisiin matalanenergia rakennuksiin.

Flexit EcoNordic W4-sisäilmalämpöpumpulla voidaan tuottaa rakennuksen lämmin käyttövesi sekä ilmanvaihto, joiden ansiosta laite on erinomainen valinta saneerattaviin pientaloihin ja asuntoihin.
EcoNordic-sisäilmalämpöpumput hyödyntävät luonnollista hiilidioksidia kylmäaineena, jonka ansiosta varsinkin lämmin käyttövesi voidaan tuottaa erittäin energiatehokkaasti. Korkean lämmöntalteenoton vuosihyötysuhteen omaava ilmanvaihtoyksikkö lisää asuinmukavuutta sekä pitää rakennuksen käyttökustannukset alhaalla korkean energiatehokkuuden ansiosta.
Laitteen ohjaaminen tapahtuu nykyaikaisen Flexit GO-ohjausjärjestelmän kautta joko puhelimen tai tabletin avulla. Flexit GO-sovellus tarjoaa monipuoliset mahdollisuudet laitteen ohjaamisen ja säätämiseen.

Mallit
Flexit EcoNordic W4, 800502
Flexit EcoNordic WH4, 800501
Video
Mittakuva
Lisävarusteet
Keittiön painevahti, 111410
Sulkupelti jousella Ø 200 mm, 14481
Sulkupelti jousella Ø 250 mm, UNI 4/S10 R, 14485
CI 75 langaton adapteri, 116098
CI 76 CO2-anturi langaton, 116061
CI 77 Kosteusanturi langaton, 116062
CI 78 Ohjainpaneeli langaton, 116063
CI 79 Painekytkin langaton, 116102
Tukiasema, 116733
EcoNordic suodatinsetti, 117079
Tuotekategorian muut tuotteet
ASIAKASPALVELU
Asiakaspalvelu palvelee
arkisin klo 8.00 – 16.00
puh. 020 720 9080
myynti@heatco.fi
HUOLTO
Huoltoon liittyvissä asioissa ota yhteyttä alla olevan linkin kautta.